New

Kent Ridge Hill Residences

$1,299,999 ($2,012 psf) [View to Offer]

  • South Buona Vista Road, 117327, D05

  • 2
  • 1
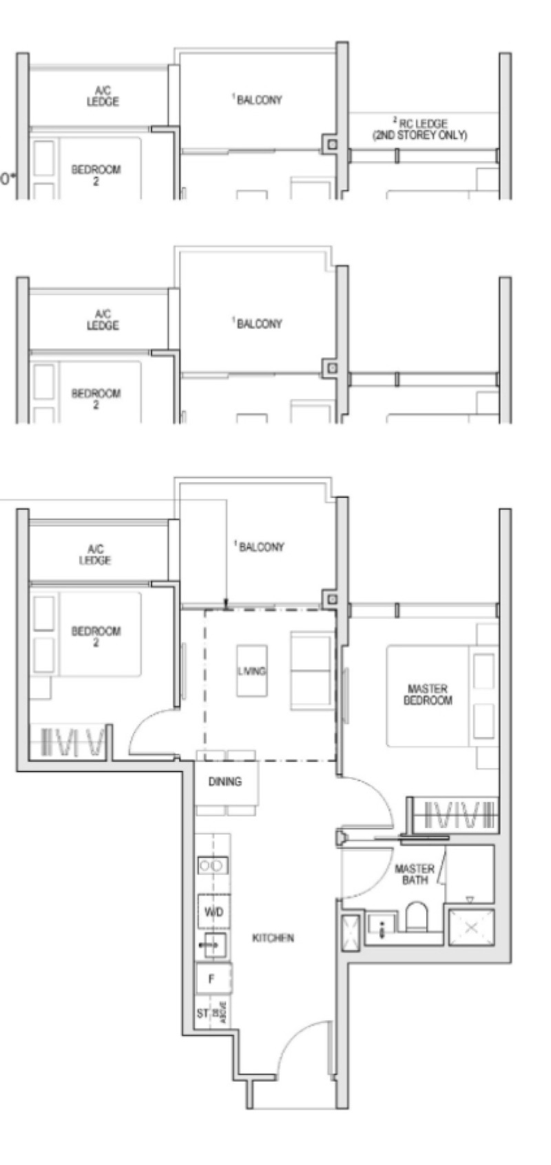
  • 646 sqft (60 sqm)

Agent Information

Michelle Goh

#R018105Z

gohmichelle@propnex.com

+65 90882384

Property Details

  • Listing Type

  • Property Group

  • Property Type

  • District

  • Floor Area

  • TOP

  • SALE

  • Apartment / Condo

  • Condominium

  • D05

  • 646

  • 2024

  • Furnishing

  • Tenure

  • Floor

  • Post Code

  • Street Name

  • Fully Furnished

  • 99-year Leasehold

  • Middle Floor

  • 117327

  • South Buona Vista Road

Description

Kent Ridge Hill Residences

For Sale

- Beautiful 2 Bedrooms 1 Bathroom
- 646 sqft
- Unblock Wimbledon Facing
- Mid Floor
- Open Concept Kitchen
- Selling Vacant
- 8 mins Walk to MRT/shuttle bus available too
- Greenery and Serene Environment
- Park Entrance from Condo
- Suitable for Single and Couple looking for your Cosy Nest you can call home
- Keys on hand. Viewing can be arrange


Location

Facilities

  • Outdoor Patio

  • Playground

  • Pool Deck

  • Intercom

  • 24 hours security

  • Rest Room

Show more ...