New

614A Edgefield Plains

$628,000 ($634 每平方英尺)

  • Edgefield Plains
    Punggol (D19)

  • 3
  • 2
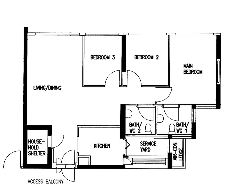
  • 990 sqft (92 sqm)

房屋代理员信息

Nabeel

#R055065I

nabeel@propnex.com

+65 82300300

房地产信息

  • 列表种类

  • 房地产组别

  • 房地产类型

  • 区域

  • 建筑楼面

  • TOP

  • SALE

  • HDB Apartment

  • HDB Apartment

  • D19

  • 990

  • 2012

  • 家具

  • 租赁地契

  • 楼层

  • 邮区

  • 街名

  • Partially Furnished

  • 99-year Leasehold

  • Low Floor

  • 821614

  • Edgefield Plains

描述

4 Room HDB Unit For Sale
614A Edgefield Plains

- Fully renovated unit
- Corner Unit
- Low Floor
- Damai LRT
- Punggol MRT

- Oasis Primary School
- Edgefield Primary School
- Punggol View Primary School
(All schools within 1km, according to onemap)

- Long submission period required (<50 Days)
- 3 months extension (no exception)

地点

设施

  • Renovated

  • Multi-purpose hall

  • Water Heater

  • Bed

  • Low Floor

  • Bombshelter

显示更多