New

CT Hub

$8,449 ($10 每平方英尺) [Negotiable]

  • Kallang Avenue, 339407, D12

  • 850 sqft (79 sqm)

房屋代理员信息

Ssharon Loh

#R042575G

SSHARON_LOH@PROPNEX.COM

+65 92771349

Been in the real estate market since 2012, providing my services for buyers/sellers/tenants/landlords in selling and leasing out their residential and commercial listings.

Do contact me for HDB/ Private Apartment/ Condominium/ Landed Properties / Commercial Properties that are available for Sale /Purchase/ Rental/ New launch.

I am open to cobroking with good ethical manners agents who can work harmoniously together.

Visit my website: https://ssharonloh.com.sg for more new launches and properties available.

Contact Ssharon Loh PropNex at 9277 1349
Email: ssharonlohpropnex@gmail.com

房地产信息

  • 列表种类

  • 房地产组别

  • 房地产类型

  • 区域

  • 建筑楼面

  • RENT

  • Retail

  • Mall Shop

  • D12

  • 850

  • 家具

  • 租赁地契

  • 楼层

  • 邮区

  • 街名

  • Partially Furnished

  • 99-year Leasehold

  • Ground Floor

  • 339407

  • Kallang Avenue

描述

CT Hub Retail Commercial Space At Level 1 for rental

✅ Address: 2 Kallang Avenue #01 CT HUB
Singapore 339407

✅ Prime Commercial Space for Rent at CT
HUB

✅Level 1 Unit No Mezzanine

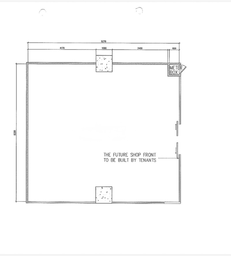
✅ Unit area: 850 sf

✅Asking $10psf nego before GST

✅Bare Flooring with concrete ceilings

✅Ceiling Height 4.3m

✅Floor Loading - 5 kN/sqm

✅ Power 60A, 3-Phase isolator

✅With Water Provisions

✅No Exhaust

✅Season Parking:
- Partial (Car $100.00; Lorry $150.00)
- Weekdays 7AM - 7PM; Saturdays 7AM - 1PM
- Outside timing $2/entry
- Full (Car $180.00; Lorry $240.00) 24/7

✅Many Units On Hand

✅All GST units

✅8 minutes' walk to Lavender MRT station (East-West Line)

✅3 minutes' walk to Bendemeer MRT station
(Downtown Line)

✅Within 5 minutes' drive to CBD

✅Easily accessible to Central, PIE and ECP

✅Discover an impressive commercial retail unit nestled in a dynamic mixed-use development featuring Commercial, Retail, Offices and B1 light industrial spaces.

✅This retail unit boasts an excellent frontage near the mall entrance, office high visibility and easy access.

✅With ample parking and superior connectivity, it's an ideal choice for various businesses.

✅Price: Staring From $10psf before GST

✅Property Size: from 474 sqft extendable to 2271 sqft

✅Rectangular layout with high ceiling of 4.3m

✅Suitable for gym, yoga, fitness trade, retail, service center, and clinic

✅Options to extend to adjoining units for larger space

✅Excellent Connectivity and Easy Access

✅ Excellent Connectivity and Easy Access
*Nearby MRT/LRT:*
- Bendemeer (0.17 KM) - 3 Mins walk
- Lavender (0.53 KM)
- Boon Keng (0.81 KM)
- Kallang (0.94 KM)
- Keys on hand for immediate viewing

Seize this opportunity to secure an adaptable space in a strategic location.

Contact Ssharon Loh 9277 1349

地点