列表种类
房地产组别
房地产类型
区域
建筑楼面
TOP
RENT
Apartment / Condo
Condominium
D09
915
2007
家具
租赁地契
楼层
邮区
街名
Fully Furnished
Freehold
High Floor
238710
Oxley Rise
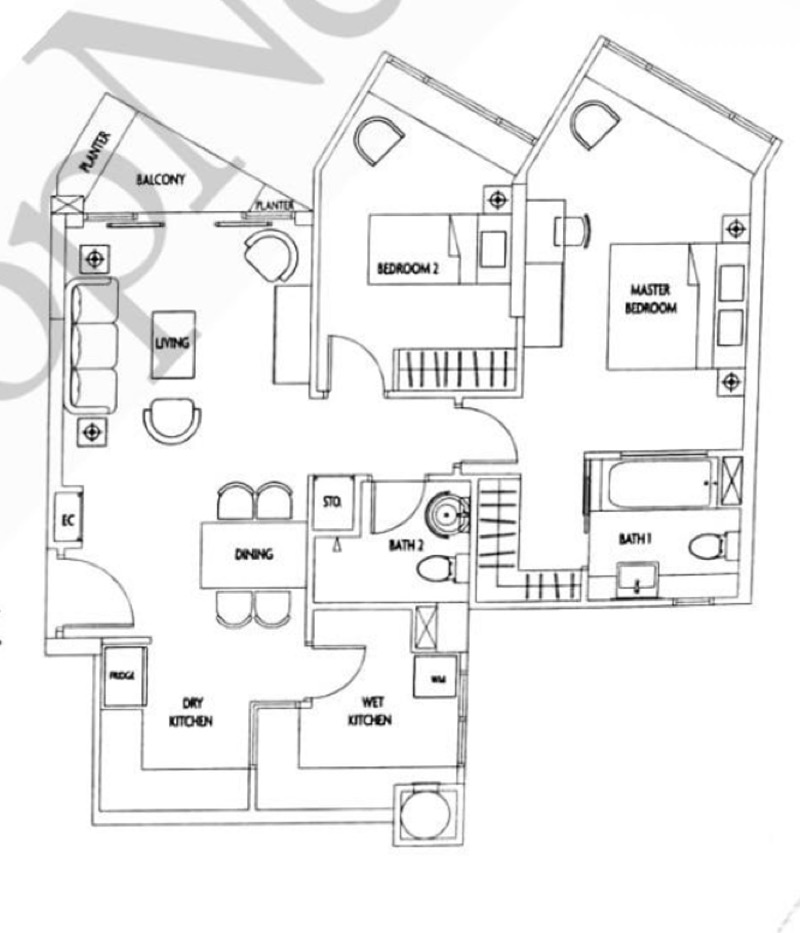
Type: 2 Bedrooms 2 Bathrooms
Size: 915 sqft
View: Swimming pool
Floor: High floor
This well-designed 2-bedroom unit at Visioncrest offers generous space, excellent natural ventilation, and a highly functional layout—ideal for professionals or small families seeking city-fringe convenience with privacy.
Key Unit Highlights
• Enclosed wet kitchen complemented by an open dry kitchen
• Spacious bedrooms with comfortable proportions
• Two well-appointed bathrooms
• Bright and windy unit with excellent airflow
• High-floor swimming pool view
Unbeatable Location
• Dhoby Ghaut MRT – approx. 317m
• Somerset MRT – approx. 422m
• Plaza Singapura – approx. 326m
• Easy access to Orchard Road, CBD, and city amenities
Facilities
• Swimming pool
• Gymnasium
• Tennis court
• Steam bath
• Full condominium facilities for a balanced lifestyle
A rare opportunity to enjoy space, convenience, and tranquility in one of the most connected locations in Singapore.
For viewing arrangements, please contact Stan at 9229 2232.