New

Stellar @ Tampines

$5,800 ($3 每平方英尺)

  • Tampines North Drive 4, 529435, D18

  • 1,668 sqft (155 sqm)

房屋代理员信息

Benson Toh Keng Siong

#R023789F

TOH_BENSON@PROPNEX.COM

+65 91800568

房地产信息

  • 列表种类

  • 房地产组别

  • 房地产类型

  • 区域

  • 建筑楼面

  • TOP

  • RENT

  • Industrial

  • Factory / Workshop (B2)

  • D18

  • 1668

  • 2027

  • 家具

  • 租赁地契

  • 楼层

  • 邮区

  • 街名

  • Unfurnished

  • Not Applicable

  • Middle Floor

  • 529435

  • Tampines North Drive 4

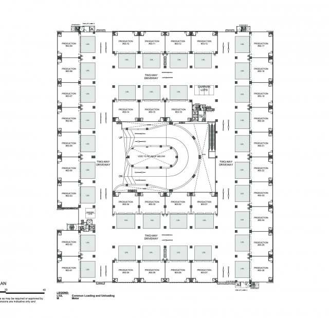
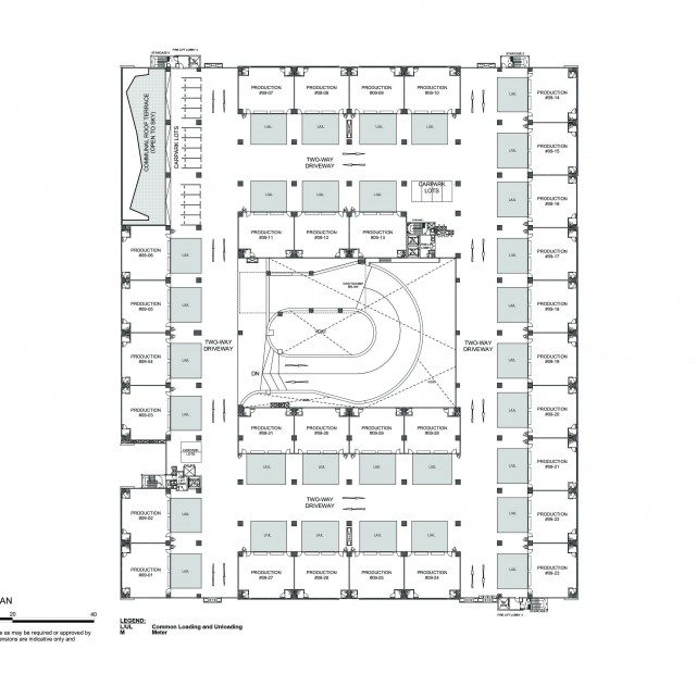
描述

For Rent: Stellar @ Tampines
*Squarish, column free layout
*Direct loading & unloading at doorstep
*Close to passenger lifts
*20ft container ramp up
*Dual roller shutters
*Dual exit doors
*2 washrooms
*High Ceiling 5.425m
*Floor loading 12.5 kN/m2
*Electrical load 60A 3-phase
*EV charger
*4 Canteens

Benson Toh
918OO568
www.homecompass.com.sg

地点

设施

  • Column Free

  • Loading Bay

  • Ram Up Access

  • Rest Room

  • Basement car park

  • Covered car park