New

264F Compassvale Bow

$3,700 ($4 每平方英尺)

  • Compassvale Bow
    Sengkang (D19)

  • 3
  • 2
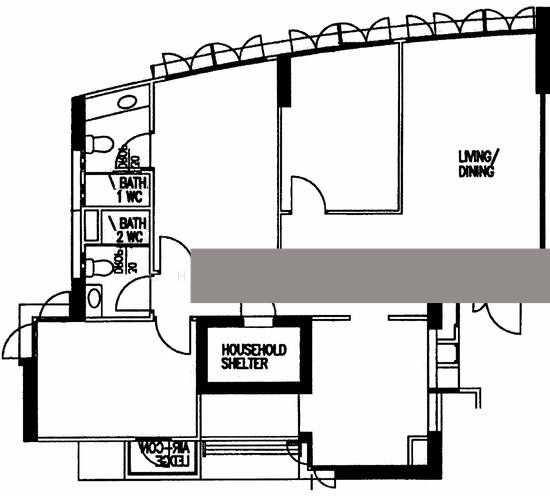
  • 990 sqft (92 sqm)

房屋代理员信息

Cheryl Tan

#R009327D

CHERYLTAN@PROPNEX.COM

+65 82820089

房地产信息

  • 列表种类

  • 房地产组别

  • 房地产类型

  • 区域

  • 建筑楼面

  • TOP

  • RENT

  • HDB Apartment

  • HDB Apartment

  • D19

  • 990

  • 2008

  • 家具

  • 租赁地契

  • 楼层

  • 邮区

  • 街名

  • Unfurnished

  • 99-year Leasehold

  • High Floor

  • 540264

  • Compassvale Bow

描述

Spacious and well-maintained 3-bedroom, 2-bathroom HDB located at Blk 264F Compassvale Bow.

A rare corner high-floor unit offering excellent privacy, brightness, and ventilation.

Unit Highlights
• 92 sqm of comfortable living space
• High floor corner unit – quiet & private
• Bright and breezy throughout the day
• Practical 3 bedrooms 2 bathrooms layout
• Well-maintained, move-in ready
• Ideal for families or professionals
• Asking $3700

Nearby Amenities
• Walking distance to Compass One Mall
• Near Sengkang MRT / Bus Interchange
• Close to supermarkets, eateries & daily conveniences
• Nearby schools, parks & childcare centres
• Excellent connectivity via TPE & major roads

• Available from 1st March

Contact now to arrange a viewing. Don’t miss this rare high-floor corner unit in the heart of Sengkang!

地点