New

Amber Park

$15,000,000 ($3,415 每平方英尺)

  • Amber Gardens, 439980, D15

  • 6
  • 4
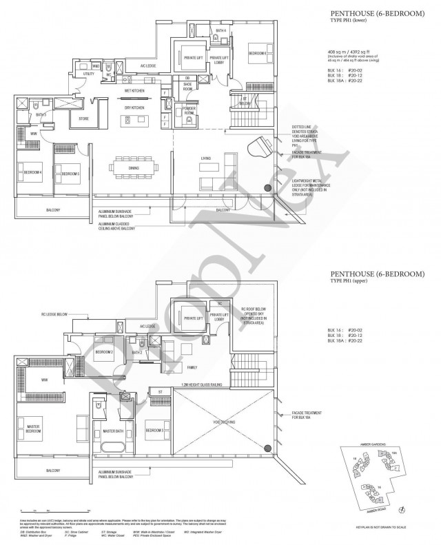
  • 4,392 sqft (408 sqm)

房屋代理员信息

Fransiska Tan

#R041991I

fransiska.tan@propnex.com

+65 91865457

房地产信息

  • 列表种类

  • 房地产组别

  • 房地产类型

  • 区域

  • 建筑楼面

  • TOP

  • SALE

  • Apartment / Condo

  • Condominium

  • D15

  • 4392

  • 2023

  • 租赁地契

  • 邮区

  • 街名

  • Freehold

  • 439980

  • Amber Gardens

描述

Rare Penthouse @ Amber Park
Freehold Huge floor plate Single Loading
High Ceiling living room with Sea, Landed and Pool View through out the house. Can fit your grand piano
Excellent size dining space with dry kitchen
Private lift connecting 2 levels
Free firework show from MBS and Kallang Stadium
6 good size bedrooms (All can fit king size), 4 toilets, 2 attached toilet. Maid has her own quarter and toilet
Extra family room on 2nd level
High end finishing and appliances

Amenities
300m to Tanjong katong MRT
Next to East Coast park entrance
Schools:
1km to Tanjong katong primary
1-2km to TKGS, Dunman High and Chun Cheng High (Main)
Walking distance to the gastronomy delight of Katong and Joo Chiat Area
Walking distance to heart of Katong where groceries, food and classes are available

Call Fransiska 9.1.8.6.5.4.5.7 for exclusive viewing

地点

设施

  • Balcony

  • Air conditioning

  • High Floor

  • Sea View

  • Swimming Pool View

  • Bed

显示更多