New

34A Mackerrow Road

$9,480,000 ($3,052 每平方英尺)

  • 34A Mackerrow Road, D13

  • 8
  • 8
  • 地段面积: 3,106 sqft (289 sqm)

  • 建筑楼面: 7,200 sqft (669 sqm)

房屋代理员信息

Ivor Tan

#R063321Z

IVOR.TAN@PROPNEX.COM

+65 88231000

房地产信息

  • 列表种类

  • 房地产组别

  • 房地产类型

  • 区域

  • 面积

  • SALE

  • Landed House

  • Semi-Detached House

  • D13

  • 7,200 sqft (Built-up) / 3,106 sqft (Landed)

  • 家具

  • 租赁地契

  • 街名

  • Unfurnished

  • Freehold

  • 34A Mackerrow Road

描述

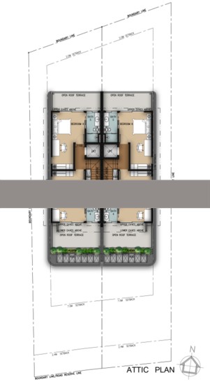
Presenting The Duo at Mackerrow Road, a rare pair of architectural semi-detached homes nestled in the heart of the prestigious Braddell Heights enclave.

Each home features approximately 7,200 sqft of built-up space, intelligently configured with 7 ensuite bedrooms, generous living and dining zones, wet and dry kitchens, and multiple family areas across levels. Ideal for extended families seeking both connectivity and independence within the same home.

Enjoy the convenience of parking for up to 5 cars, a rare luxury within landed estates.

With Estimated TOP in Q2 2027, secure early entry into a thoughtfully curated architectural home in one of District 13’s most established landed enclaves.

A rare opportunity to own a statement home where scale meets design excellence.

Contact us for full plans, detailed specifications and private discussion.


-----
Disclaimer: Photos used are solely for reference use only and may not represent the final result.

Disclaimer: All land and built-up areas are based on approximate measurements only and are subject to final survey and shall not form part of any offer or contract nor constitute any warranty by the salesperson and shall not be regarded as statements or representations of fact.

地点