New

The Greenwood

$4,000,000 ($1,191 每平方英尺)

  • Greenwood Avenue, D11

  • 5
  • 5
  • 地段面积: 3,358 sqft (312 sqm)

  • 建筑楼面: 3,358 sqft (312 sqm)

房屋代理员信息

Ivor Tan

#R063321Z

IVOR.TAN@PROPNEX.COM

+65 88231000

房地产信息

  • 列表种类

  • 房地产组别

  • 房地产类型

  • 区域

  • 面积

  • TOP

  • SALE

  • Landed House

  • Terraced House

  • D11

  • 3,358 sqft (Built-up) / 3,358 sqft (Landed)

  • 2011

  • 家具

  • 租赁地契

  • 街名

  • Partially Furnished

  • Not Applicable

  • Greenwood Avenue

描述

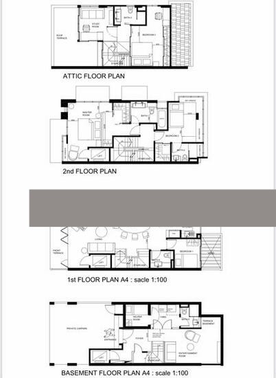
Discover refined living in this exclusive corner unit at The Greenwood. Spanning 3,358 sqft, this elegant home offers 5 spacious rooms, 5 bathrooms, and a private lift for added convenience. With 2 dedicated parking lots, enjoy seamless access to your home in a peaceful and green neighborhood. Perfect for those seeking space, privacy, and a touch of luxury in a prime location.

* 3358 sqft of generous living space
* 5 bedrooms, 5 bathrooms – perfect for families
* Private lift for added convenience and privacy
* Corner unit offering exclusivity and natural light
* 2 parking lots for hassle-free parking
* Nestled in a serene and green environment

Don’t miss this rare find! Contact us today for a viewing.

地点