New

476 Jurong West Street 41

$420,000 ($535 每平方英尺)

  • Jurong West Street 41
    Jurong West (D22)

  • 2
  • 2
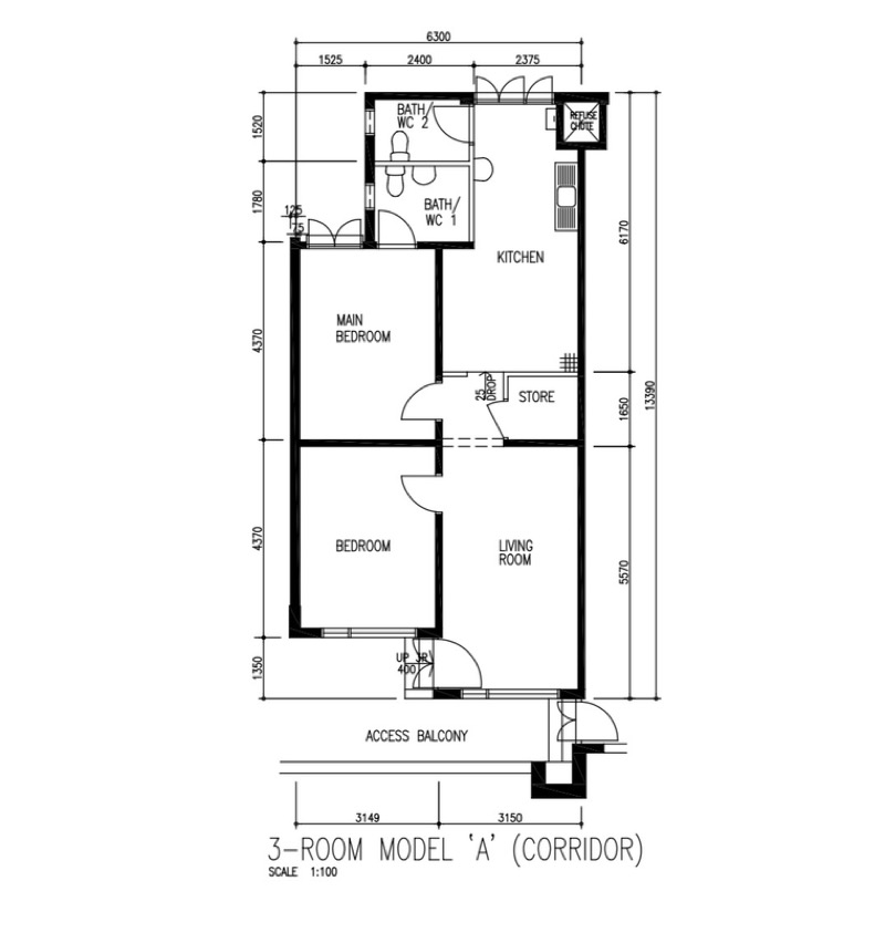
  • 785 sqft (73 sqm)

房屋代理员信息

Syahid Masnor

#R068899E

SYAHID.MASNOR@PROPNEX.COM

+65 92231005

房地产信息

  • 列表种类

  • 房地产组别

  • 房地产类型

  • 区域

  • 建筑楼面

  • TOP

  • SALE

  • HDB Apartment

  • HDB Apartment

  • D22

  • 785

  • 1984

  • 租赁地契

  • 邮区

  • 街名

  • 99-year Leasehold

  • 640476

  • Jurong West Street 41

地点

设施

  • Air conditioning

  • Playground

  • Mini-Mart