New
$3,700 ($6 每平方英尺)
Bedok North Drive, 465499, D16
1
1
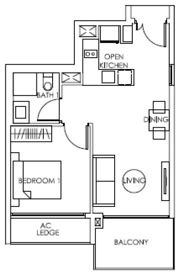
570 sqft (53 sqm) 房屋代理员信息
#R022568E
william.wong@propnex.com
+65 84447425
列表种类
房地产组别
房地产类型
区域
建筑楼面
TOP
RENT
Apartment / Condo
Condominium
D16
570
2015
租赁地契
邮区
街名
99-year Leasehold
465499
Bedok North Drive
High floor sea view 1 bedroom unit for rent.
Available: Immediate.
Bright and windy.
Fully furnished.
Open Kitchen concept.
Conveniently located.
On top of Bedok Mall.
Very short walk to Bedok MRT Station.
Key on hand.
Call William Wong now at 8444.7425 for viewing arrangement.
****
Bedok Residences
------------------
Prestigious Development at Dist 16
The only mixed development on top at Bedok Mall and MRT imagine the CONVENIENT!
Direct MRT Green line to city and interchange @paya lebar for Circle Line
1 MRT Stop to Changi Business Park
2 MRT Stop to Airport
East Coast Park less than 5 mins away driving
Types:
1 Bed 517-657sqft
1 Study 517-980sqft
2bdrm 689-1227sqft
3bdrm 1***** sqft
4bdrm 1***** sqft
Penthouse 1***** sqft
Buyers/Sellers/Tenants/Landlords feel free to contact me at 8444,7425 or wwsgproperty@yahoo.com.sg
My team is focusing at new TOP projects around the vicinity
One stop solution :)