New

Hedges Park Condominium

$1,400,000 ($1,301 每平方英尺)

  • Flora Drive, 506885, D17

  • 3
  • 3
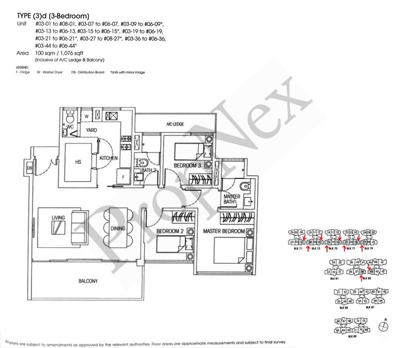
  • 1,076 sqft (100 sqm)

房屋代理员信息

Joyce Lock

#R066580H

JOYCE_LOCKST@PROPNEX.COM

+65 88681336

房地产信息

  • 列表种类

  • 房地产组别

  • 房地产类型

  • 区域

  • 建筑楼面

  • TOP

  • SALE

  • Apartment / Condo

  • Condominium

  • D17

  • 1076

  • 2015

  • 租赁地契

  • 楼层

  • 邮区

  • 街名

  • 99-year Leasehold

  • Low Floor

  • 506885

  • Flora Drive

描述

Stunning 3 Bedroom Condo

* Pool view
* Unblock
* Windy
* Quiet
* Efficient and Spacious layout

Resort Style Living

地点

设施

  • Air conditioning

  • Balcony

  • Swimming Pool View