New

Hundred Trees

$988,000 ($2,041 psf) [Negotiable]

  • West Coast Drive, 128018, D05

  • 1
  • 1
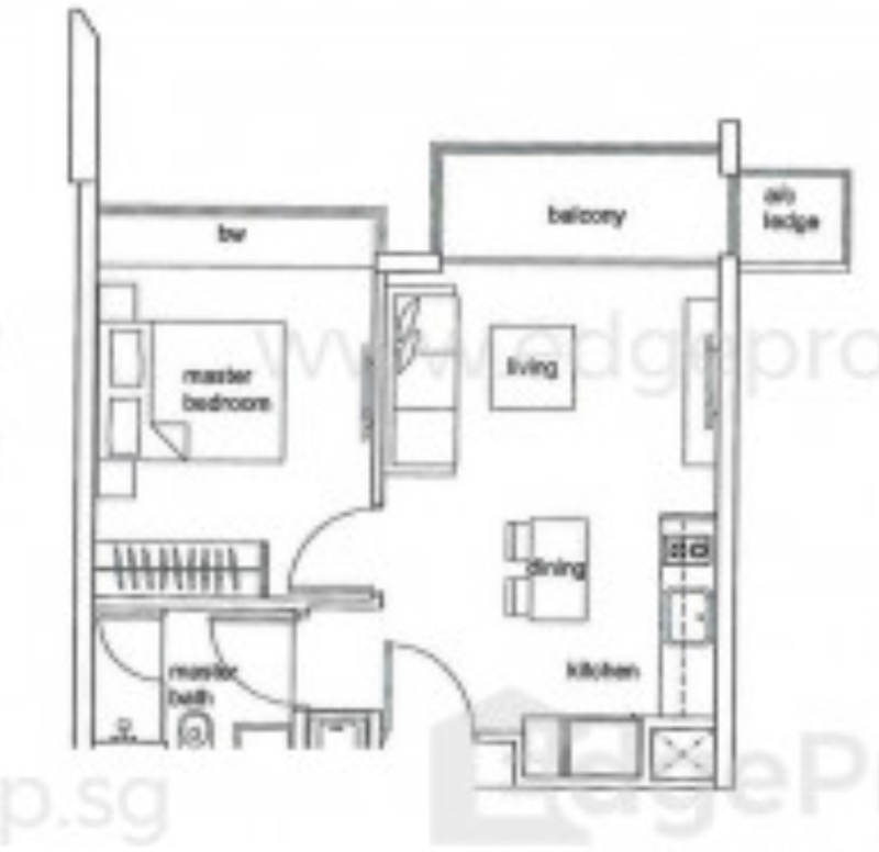
  • 484 sqft (45 sqm)

Agent Information

Maxx Wong

#R002553H

maxx.wong@propnex.com

+65 86680083

Property Details

  • Listing Type

  • Property Group

  • Property Type

  • District

  • Floor Area

  • TOP

  • SALE

  • Apartment / Condo

  • Condominium

  • D05

  • 484

  • 2013

  • Furnishing

  • Floor

  • Post Code

  • Street Name

  • Fully Furnished

  • High Floor

  • 128018

  • West Coast Drive

Description

- New listing
- High floor
- Living room faces North East
- Main door faces South West
- Bright and windy
- Spacious
- Well kept
- Well maintained
- A1 condition
- Close to amenities
- Shuttle bus to MRT station
- Selling vacant possession
- Within 1km to
1. Qifa Primary School
2. Nan Hua Primary School
3. Clementi Primary School
- Not to be missed

Hundred Trees Hundred Trees Hundred Trees
Hundred Trees Hundred Trees

Location

Facilities

  • Kitchen

  • Intercom

  • Cooker Hob/Hood

  • Park / Greenery View

  • Balcony

  • Basement car park

Show more ...