New

Cecil House

$51,170 ($8 psf) [Negotiable]

  • Cecil Street, 069539, D01

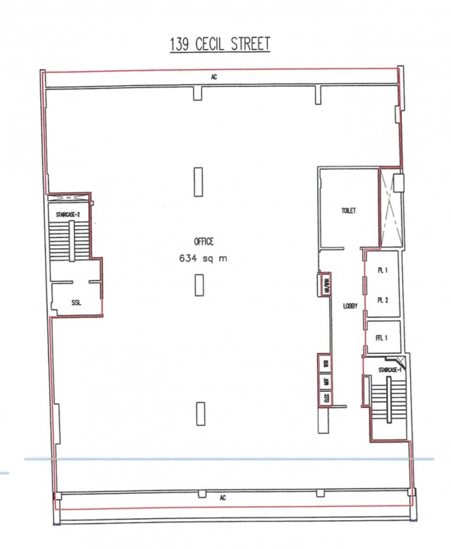
  • 6,823 sqft (634 sqm)

Agent Information

Susan Lam

#R012435H

susan.lam@propnex.com

+65 94775311

Property Details

  • Listing Type

  • Property Group

  • Property Type

  • District

  • Floor Area

  • RENT

  • Office

  • Office

  • D01

  • 6823

  • Tenure

  • Post Code

  • Street Name

  • 99-year Leasehold

  • 069539

  • Cecil Street

Description

Rare Whole Floor Office n F&B Rental at 139 Cecil St Prestigious CBD

139 CECIL STREET - Prestigious Address in CBD in District 1

2 Entire floorplate units for Rental – enjoy full privacy and corporate presence
Unit 1 for Office Usage on Level 9
Size Approx. 6,824 sqft for Office usage @ $7.50psf
Asking Rent $51,180 /month, negotiable (subject to GST)

Unit 2 for F&B usage on Level 14
Size Approx. 6,857 sqft for F&B usage @ $8.50psf
Asking Rent $58,280 /month, negotiable (subject to GST)

Available immediately !!!

• Refurbished in 2021 – modern infrastructure & upgraded interiors
• High Ceiling height: Generous 3.8 metres
• Suitable for: Corporates, co-working concepts, boutique firms, gyms, or creative studios
• Flexible Open & Efficient layout potential – design your space to suit your operations

Prime Central Location – 139 Cecil Street, Singapore CBD
• Heart of the Central Business District (CBD)
• Surrounded by major commercial buildings and financial institutions
• Walking distance to 8 MRT stations (3 MRT lines):
o Shenton Way (280m), Telok Ayer (290m), Tanjong Pagar (450m), Downtown (480m)
o Raffles Place, Maxwell, Chinatown, Prince Edward, Marina Bay – all nearby
• Food havens within steps: Amoy Street Food Centre (214m), Maxwell Food Centre (417m)

Nearby Educational Institutions & Preschools
• Staff with young children enjoy convenience of preschools located within 200m: Da Little Preschool, Mulberry Learning, and Learning Vision @ Work
making work-life balance easier than ever.

Please Contact Susan Lam at 94.77 53.11 for more information or to arrange for a private viewing appointment.

Thank you and be blessed.
Susan Lam | 林宝梨
Propnex Realty Luxury Team
CEA Reg No. R012435H
Mobile: +65 9477-5311
WeChat 微信: SL94775311
Email: susanlam.pn@gmail.com
https://project-launch.com.sg/
https://r012435h.propnex.net/

Location

Facilities

  • Air conditioning