New

3 Beach Road

$485,000 ($663 psf) [Starting from]

  • Beach Road
    Kallang/Whampoa (D07)

  • 2
  • 2
  • 731 sqft (68 sqm)

Agent Information

Som

#R018540C

SOMG@PROPNEX.COM

+65 97884142

We assist with Asset Progression / Planning, Retirement and Legacy Planning, Sale, Purchase, Rent, etc. of any kind of property in Singapore. Residential, Commercial, Industrial, Retail, Offices - all under your portfolio. We tailor solutions and advice according to your situation.

Welcome to check out more details at the following link:

https://r018540c.propnex.net/

Please contact Som @ 9788 4142
Or https://wa.me/+6597884142

Property Details

  • Listing Type

  • Property Group

  • Property Type

  • District

  • Floor Area

  • TOP

  • SALE

  • HDB Apartment

  • HDB Apartment

  • D07

  • 731

  • 1979

  • Furnishing

  • Tenure

  • Floor

  • Post Code

  • Street Name

  • Unfurnished

  • 99-year Leasehold

  • High Floor

  • 190003

  • Beach Road

Description

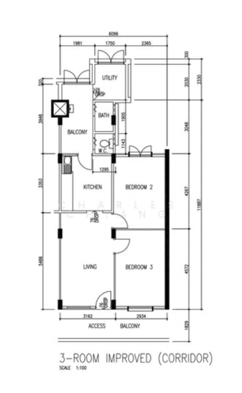
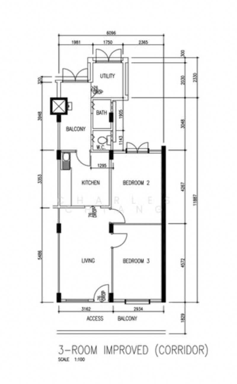
Blk 3 Beach Road 3i Flat for Sale – High Floor Gem!
• Prime Location: Blk 3 Beach Road – city-fringe convenience in a mature estate.
• High Floor Perks: Naturally bright and spacious with excellent ventilation.
• Lease Details: Balance of 52 years remaining – solid for long-term value.
• Smart Layout: 2 bedrooms additional utility room (perfect for study, storage or wardrobe).
• Practical Bathroom: Separate shower and toilet for daily ease.
• Renovation Ready: Ideal blank canvas – customise to your dream home style.
• Urgent Action: Grab now before it’s gone – limited high-floor units!
Contact now for full details and viewing!

Location

Facilities

  • Cooker Hob/Hood

  • Original Condition