New

ct foodnex

$4,500 ($3 psf)

  • Mandai Estate, 729928, D25

  • 1,798 sqft (167 sqm)

Agent Information

Jeff Tan

#R052442I

KIMPO.TAN@PROPNEX.COM

+65 82508383

Property Details

  • Listing Type

  • Property Group

  • Property Type

  • District

  • Floor Area

  • TOP

  • RENT

  • Industrial

  • Factory / Workshop (B2)

  • D25

  • 1798

  • 2027

  • Furnishing

  • Tenure

  • Floor

  • Post Code

  • Street Name

  • Unfurnished

  • Freehold

  • Middle Floor

  • 729928

  • Mandai Estate

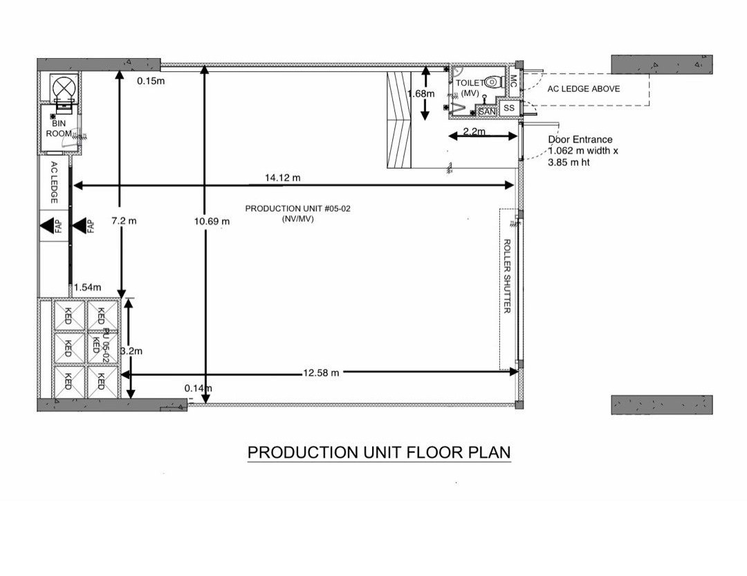
Description

Mandai Food Factory
@CT Foodnex

Ideal for food processing, storage, central kitchen etc

Ramp-up to door step
10ft to 14ft trucks accessible

High Ceiling
Grease Trap
Kitchen Exhaust Duct
Drainage System

Convenient location
Close to major expressways, KJE, BKE.
Nearby future Sungai Kadut MRT interchange

For viewing
Please contact
Jeff Tan @ 8250 8383

Location