New

City Square Residences

$3,600,000 ($2,372 psf)

  • Kitchener Link, 207223, D08

  • 4
  • 4
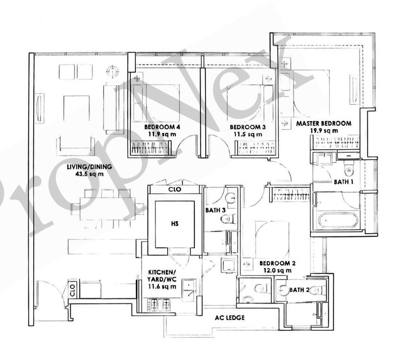
  • 1,518 sqft (141 sqm)

Agent Information

Michelle Goh

#R018105Z

gohmichelle@propnex.com

+65 90882384

Property Details

  • Listing Type

  • Property Group

  • Property Type

  • District

  • Floor Area

  • TOP

  • SALE

  • Apartment / Condo

  • Condominium

  • D08

  • 1518

  • 2009

  • Furnishing

  • Tenure

  • Floor

  • Post Code

  • Street Name

  • Partially Furnished

  • Freehold

  • High Floor

  • 207223

  • Kitchener Link

Description

Freehold @ Leasehold Price

Very Rare Available
Perfect for Families
- Huge and Spacious 4 Bedrooms
- 1 Masterbedroom, 1 Junior Master, 2 common room
- 1 of the bedroom can be a flexi for study room or expansion of living hall area
- Wet and Dry Kitchen
- Yard Area
- Helper/Store Room with Baths
- 5 mins walk to Farrer MRT
- Opposite is just City Square Mall
- Freehold yet near MRT
- Buy to stay and preserve your Asset
- Selling Vacant
- No Extension Needed
- Perfect for families transiting from another home
- Call now for an Exclusive Viewing Appointment

Location

Facilities

  • Fridge

  • Pavillion

  • Pool Deck

  • Playground

  • Bathtub

  • BBQ pits

Show more ...