New

530 NORTH BRIDGE ROAD

$35,000 ($16 psf)

  • North Bridge Road, 188747, D07

  • 2,142 sqft (199 sqm)

Agent Information

June Leng

#R012861B

juneleng@propnex.com

+65 98715880

Property Details

  • Listing Type

  • Property Group

  • Property Type

  • District

  • Floor Area

  • RENT

  • Retail

  • Food & Beverage

  • D07

  • 2142

  • Furnishing

  • Post Code

  • Street Name

  • Fully Furnished

  • 188747

  • North Bridge Road

Description

📍 Bugis Point – 530 North Bridge Road
A rare 2-level F&B space in one of Singapore’s busiest city-fringe hotspots — surrounded by constant MRT traffic, malls, offices, and the Bugis lifestyle belt.

Why this location works:
• Steps to Bugis MRT (EW/DT interchange) = daily commuter mall crowd
• North Bridge Road frontage strong walk-in visibility
• In the heart of Bugis Junction / Bugis / National Library catchment
• Near Haji Lane / Arab Street / Kampong Glam — huge evening weekend crowd
• Strong mix of students, tourists, office workers, and residents = all-day demand

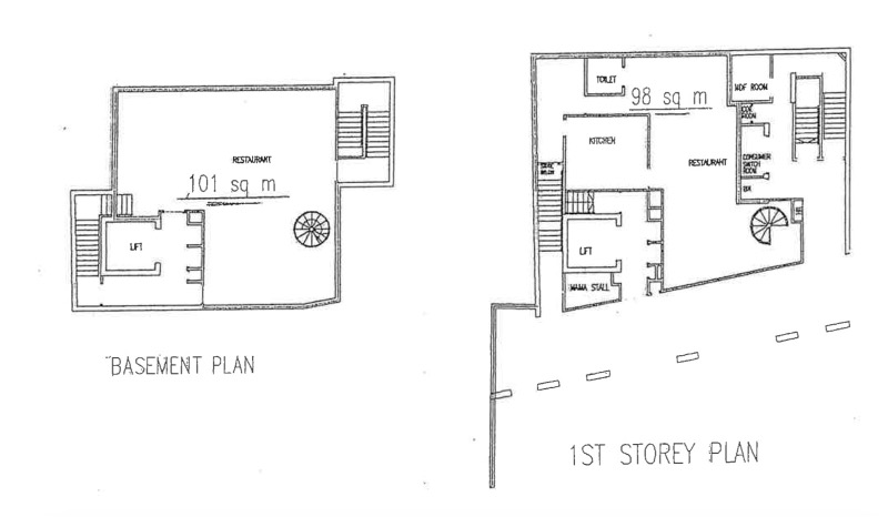
Unit highlights:
✅ 2,142 sqft (Ground Basement)
✅ Lift serves both floors built-in dumbwaiter
✅ Full F&B capability
✅ No takeover fee — existing tenant can leave kitchen in place

💰 $35,000 GST / month

Ideal for concepts that need high footfall central accessibility.
DM me for floor plan viewing.

#BugisPoint #BugisMRT #NorthBridgeRoad #FNBForRent #SingaporeCommercial #RetailSpaceSG #RestaurantSpaceSG #PrimeLocationSG #ShopForRentSG #CommercialPropertySG

Location