New
$1,080,000 ($1,338 psf) [View to Offer]
Kandis Link, 756967, D27
2
2
807 sqft (75 sqm) Agent Information
#R058295Z
TANHENGKEE@PROPNEX.COM
+65 96365688
My name is Heng Kee from PropNex (Singapore Largest Real Estate Agency).
Having monitored the property market since 2003, I have witnessed and see how the market behaved each time before it starts to move up, then down, then up again, and the cycle continues… Since then, I have personally invested in properties, both in Singapore and Malaysia, and I’m now helping my clients to manage their properties too - be it buying, selling, or renting.
With a strong record in assessing my Clients’ property portfolio, I am able to help them to grow their wealth through property investment, systematically and in a stress-free manner. Ultimately, my Client should retire without worry about cashflow and being able to leave behind asset for their next generation.
Owning and/or Investing in property should be a blessing, not a burden. Don’t you agree?
Some common questions my Clients always ask:
Which is better for me? HDB, EC or Private Property?
Which gives a better investment return? Freehold or Leasehold?
Which one appreciates faster or slower now? CCR, RCR or OCR?
I want to invest, which is the one? How to do it step-by-step?
Do you have similar questions? Drop me a text or call me (+65) 9636 5688. I enjoy meeting people, and let’s have a non-obligation chat!
Heng Kee (PropNex)
m: 9636 5688
e: tanhengkee@gmail.com
w: sgpropertyplace.com
Listing Type
Property Group
Property Type
District
Floor Area
TOP
SALE
Apartment / Condo
Condominium
D27
807
2021
Furnishing
Tenure
Floor
Post Code
Street Name
Unfurnished
99-year Leasehold
Middle Floor
756967
Kandis Link
Bank Sale! Exclusive Living Near Sembawang Park
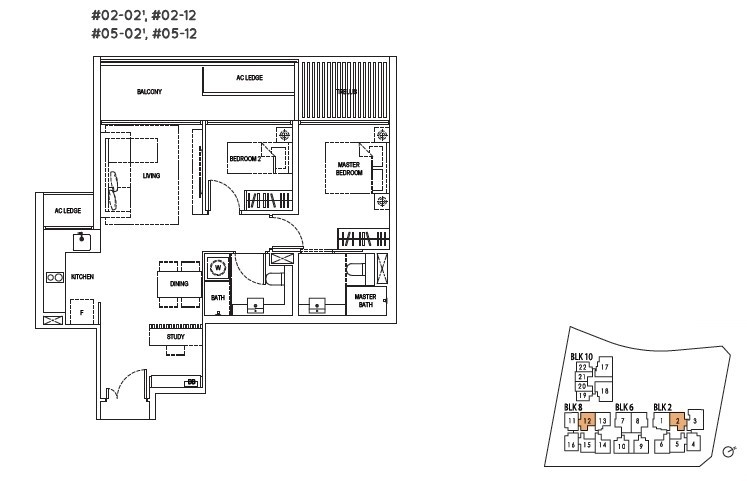
Unit No: #04-02
2 Bedrooms + Study + 2 Bathrooms
807sqft
Well maintained
Pool view
Landed feel
Living: Northwest
Maindoor: Southeast
Low density
Quiet and Exclusive
Stroll to Sembawang Park
***Maintenance: $510/mth
Keys On Hand. Viewing Anytime!!
MUST SELL!!
Call for viewing appointment.
Heng Kee | PropNex
m 9.6.3.6.5.6.8.8 (wa.me/6596365688)
myhomes.com.sg
Welcome Landlords, Sellers, Buyers, Tenants to call for a friendly discussion on your property plan.