New

231 Jurong East Street 21

$460,000 ($522 psf)

  • Jurong East Street 21
    Jurong East (D22)

  • 2
  • 2
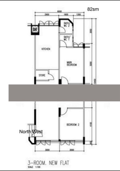
  • 882 sqft (82 sqm)

Agent Information

Karen Low

#R064218F

SGPROPERTYKAREN@PROPNEX.COM

+65 88971732

Write some more info about you...

Property Details

  • Listing Type

  • Property Group

  • Property Type

  • District

  • Floor Area

  • TOP

  • SALE

  • HDB Apartment

  • HDB Apartment

  • D22

  • 882

  • 1981

  • Furnishing

  • Tenure

  • Floor

  • Post Code

  • Street Name

  • Unfurnished

  • 99-year Leasehold

  • High Floor

  • 600231

  • Jurong East Street 21

Description

Create 3rd bedroom or big living area with this original condition unit at Blk 231, Jurong East Street 21.
* 8 mins walk to Toh Guan MRT stattion

Call 8897 I732 for viewing.

- Genuine seller, price nego.
- Rare 2-bedroom, 2-bathroom
- size 882 sqft = 82 sqm
- Potential to create 3rd bedroom
- High Floor
- Bright and airy
- Corner unit, full of privacy
- White canvas, create your dream home

Location