New

Twin Fountains

$3,000,000 ($1,359 psf) [Starting from]

  • Woodlands Avenue 6, 738992, D25

  • 5
  • 5
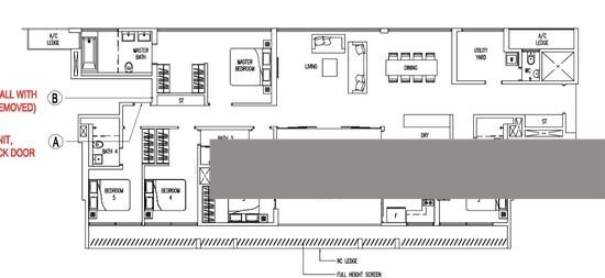
  • 2,207 sqft (205 sqm)

Agent Information

Ivor Tan

#R063321Z

IVOR.TAN@PROPNEX.COM

+65 88231000

Property Details

  • Listing Type

  • Property Group

  • Property Type

  • District

  • Floor Area

  • TOP

  • SALE

  • Apartment / Condo

  • Executive Condominium

  • D25

  • 2207

  • 2016

  • Furnishing

  • Tenure

  • Floor

  • Post Code

  • Street Name

  • Partially Furnished

  • 99-year Leasehold

  • Penthouse

  • 738992

  • Woodlands Avenue 6

Description

Exclusive Super rare beautifully renovated unit, single floor plate with no wasted space

Featuring
Massive 2204 sqft!!!
• 5 bedrooms
• 5 bathrooms
• Designer renovated unit 100% move in condition
• Sizeable balcony perfect for alfresco dining/bbq
• Meticulously maintained by home proud owners

Full condo facilities, 2mins drive to expressway, plenty of amenities 2mins walk away.

Location