New

Gallop Green

$11,000,000 ($2,594 psf)

  • Woollerton Park, 257534, D10

  • 5
  • 6
  • 4,241 sqft (394 sqm)

Agent Information

Ivor Tan

#R063321Z

IVOR.TAN@PROPNEX.COM

+65 88231000

Property Details

  • Listing Type

  • Property Group

  • Property Type

  • District

  • Floor Area

  • TOP

  • SALE

  • Apartment / Condo

  • Condominium

  • D10

  • 4241

  • 2002

  • Furnishing

  • Tenure

  • Post Code

  • Street Name

  • Partially Furnished

  • Freehold

  • 257534

  • Woollerton Park

Description

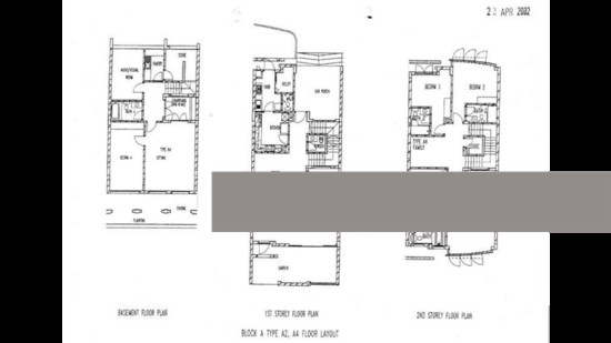
Situated in the exclusive Woollerton Road residential enclave in District 10, Gallop Green is one of the lowest density condominium living in Singapore – only 13 units of townhouses and 40 apartments on 143,221 sq ft of sprawling land.

Park right next to your doorstep and come home to a peaceful sanctuary. This spacious 3-storey townhouse unit comes with five bedrooms, a basement studio, huge entertainment areas and open terrace (4,241sqft).

Unit is tenanted at $21,000/month till 30 Nov 2027.

Gallop Green has also a host of amenities that are readily available, such as major shopping centres, supermarkets, restaurants and eating establishments, banks, library, cinemas and other entertainment facilities.

The schools within the vicinity are, St Margaret's Secondry School, Nanyang Primary School and Raffles Girls' Primary School.

Walking distance to Farrer MRT providing seamless connectivity island-wide.

Contact us to arrange an exclusive viewing today!

4241 sqft refers to estimated built up, land area not available.

Location