New

163 Ang Mo Kio Avenue 4

$600,000 ($680 psf)

  • Ang Mo Kio Avenue 4
    Ang Mo Kio (D20)

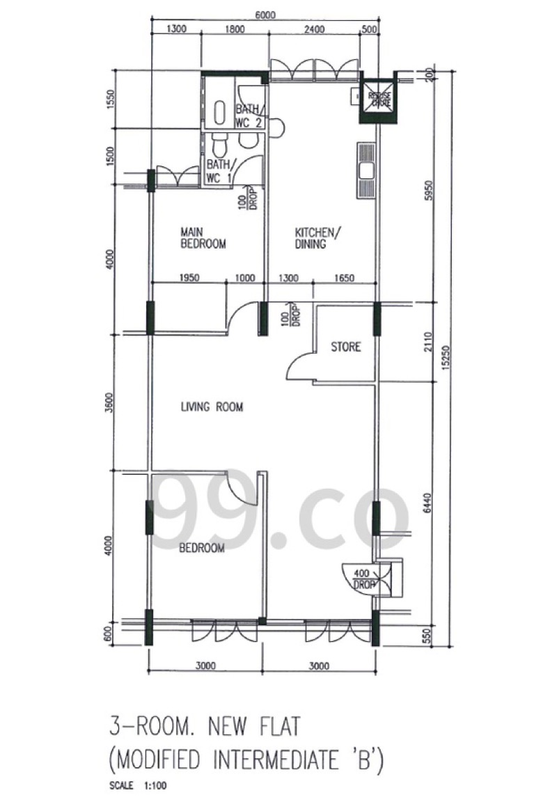
  • 3
  • 2
  • 882 sqft (82 sqm)

Agent Information

Jasper Koh

#R056772A

JASPER.KOH@PROPNEX.COM

+65 91830433

Property Details

  • Listing Type

  • Property Group

  • Property Type

  • District

  • Floor Area

  • TOP

  • SALE

  • HDB Apartment

  • HDB Apartment

  • D20

  • 882

  • 1980

  • Furnishing

  • Tenure

  • Floor

  • Post Code

  • Street Name

  • Unfurnished

  • 99-year Leasehold

  • Low Floor

  • 560163

  • Ang Mo Kio Avenue 4

Description

Discover an exceptional opportunity at 163 Ang Mo Kio Avenue 4, a well-maintained HDB apartment in District 20. Priced attractively at SGD 600,000, this spacious 3-bedroom, 2-bathroom unit offers a comfortable and functional living space ideal for first-time homeowners, young professionals, or those seeking a strategic investment in a mature neighbourhood. With a leasehold tenure of 99 years, this property provides long-term stability and value.

Built in 1981, this residence combines a practical layout with a central location in Ang Mo Kio, one of Singapore’s most sought-after mature districts. Its accessibility and connectivity make it an excellent choice for those looking for convenience and ease of commute, while the generous floor plan caters to modern living needs.

Currently active and available for sale, this property represents a prime opportunity to acquire a well-priced home in a highly desirable area. Whether you are starting your property journey or expanding your portfolio, 163 Ang Mo Kio Avenue 4 offers a compelling combination of affordability, location, and potential.

Location

Facilities

  • Low Floor

  • Open car park

  • Original Condition

  • Cooker Hob/Hood

  • Air conditioning

  • Corner Unit

Show more ...