New

Floridian

$2,325,000 ($2,572 psf)

  • Bukit Timah Road, 589626, D21

  • 2
  • 2
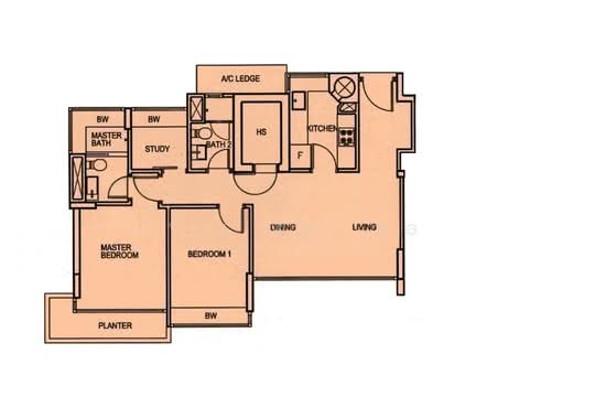
  • 904 sqft (84 sqm)

Agent Information

Ng Yee Wei

#R059422B

yeewei.ng@propnex.com

+65 83218433

Property Details

  • Listing Type

  • Property Group

  • Property Type

  • District

  • Floor Area

  • TOP

  • SALE

  • Apartment / Condo

  • Condominium

  • D21

  • 904

  • 2012

  • Furnishing

  • Tenure

  • Floor

  • Post Code

  • Street Name

  • Unfurnished

  • Freehold

  • Ground Floor

  • 589626

  • Bukit Timah Road

Description

• Freehold
• 2 bedroom study home shelter
• Good sized, regular layout
• Ideal for small families
• Greenery facing
• Internal block, away from Bukit Timah Road
• Short walk to King Albert Park MRT
• Within 1km of Methodist Girls' School



Please call Chloe 8233.6068 for details!

Location