New

One St Michael's

$2,399,000 ($2,026 psf) [Starting from]

  • Saint Michael's Road, 328006, D12

  • 3
  • 2
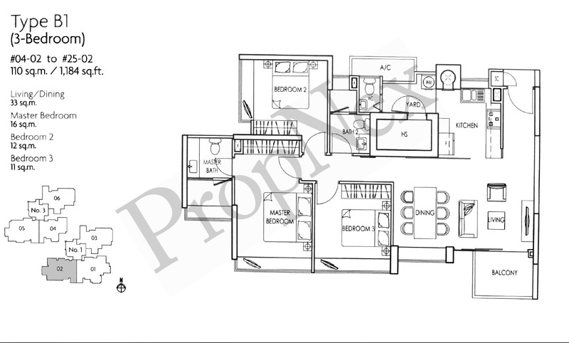
  • 1,184 sqft (110 sqm)

Agent Information

Tsui Sau Chong

#R066967H

OSCAR@PROPNEX.COM

+65 93373167

Property Details

  • Listing Type

  • Property Group

  • Property Type

  • District

  • Floor Area

  • TOP

  • SALE

  • Apartment / Condo

  • Condominium

  • D12

  • 1184

  • 2010

  • Furnishing

  • Tenure

  • Floor

  • Post Code

  • Street Name

  • Partially Furnished

  • Freehold

  • High Floor

  • 328006

  • Saint Michael's Road

Description

Best layout! Freehold unit!

Landscape layout

3 Bed 2 Bath Household Shelter, 1184 sqft.

- High floor
- Squarish layout
- Full master and junior master bedrooms
- Huge rooms
- Quiet and windy

MRT:
- NE9 Boon Keng MRT (686m)
- DT24 Geylang Bahru MRT (867m)
- NE10 Potong Pasir MRT (892m)
- EW10 Kallang MRT (1.65km)

Schools within 1-2km:
- Bendeemer Pri (240m)
- St Andrew's Junior / Secondary / JC (700m)
- Cedar Pri / Cedar Girls' Sec (1.6km)

Malls:
- The Poiz (829m)
- Shaw Plaza (1.53km)
- Aperia (1.54km)

Perfect for families / couples looking for tons of space.

Call Oscar @ 9337.3167 to view today!

Location

Facilities

  • Intercom

  • High Floor

  • Balcony

  • Air conditioning